Experience Life Beyond the Ordinary

Signature Livings District 2 presents 10 Marla (250 Sq. Yd.) luxurious residential villas. The units exhibit modern architectural style, which grabs your attention in just a glance. Each villa is thoughtfully designed with living spaces, ideal for your growing family.

The units feature modern exteriors with large windows, spacious lounge area, expansive terrace and balcony areas that offer a peaceful street view of the community. It is the perfect balance of space and luxury.

These 2 story villas come in two different design styles.

Type-A

Type-B

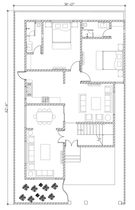
This 10 Marla (250 Sq. Yd.) Type-A villa redefines luxury with its seamless blend of gorgeous interior and beautifully designed exterior. The units feature a covered parking area, spacious bedrooms and bathrooms, stylish kitchen, and a cozy lounge perfect for family gatherings. Its outdoor has a welcoming getaway which makes it the perfect place for your family.

Exclusive Community Location

GROUND FLOOR

Floor Plan

Features

  • 2 Bedrooms
  • 2 Bathrooms
  • 1 Drawing Room
  • 1 Lounge
  • 1 Kitchen
  • 1 Dinning
  • 1 Car Porch

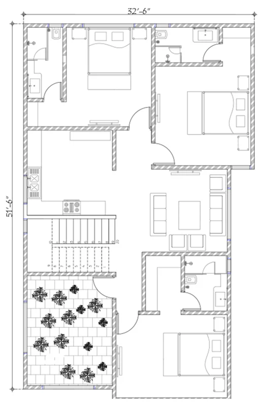
FIRST FLOOR

Floor Plan

Features

  • 3 Bedrooms
  • 3 Bathrooms
  • 1 Lounge
  • 1 Kitchen
  • 1 Terrace

This 10 Marla (250 Sq. Yd.) Type-B villa has an incredible blend of elegance and comfort. Its aesthetically pleasing exterior opens to a spacious interior, featuring expansive bedrooms and bathrooms, a stylish kitchen, and a cozy lounge area. The villa’s large balcony area offers a calming and scenic view of the community, while the covered parking adds convenience to your life.

Exclusive Community Location

GROUND FLOOR

Floor Plan

Features

  • 2 Bedrooms
  • 2 Bathrooms
  • 1 Drawing Room
  • 1 Lounge
  • 1 Kitchen
  • 1 Dinning
  • 1 Car Porch

FIRST FLOOR

Floor Plan

Features

  • 3 Bedrooms
  • 3 Bathrooms
  • 1 Lounge
  • 1 Kitchen
  • 1 Store
  • 1 Terrace