The Perfect Home for Your Small Family

Signature Livings District 2 presents 5 Marla (125 Sq. Yd.) ultra-modern residential villas, featuring remarkable architectural aesthetics. These villas are precisely built with top-tier craftsmanship and high-quality materials, ensuring a living experience filled with comfort and style.

The units are small in size but big in luxury. They offer contemporary exteriors, thoughtfully designed interiors, symmetrical layouts, large floor to ceiling windows, and cozy living spaces especially designed for your small family.

These 2 story villas come in two different design styles.

Type-A

Type-B

This luxurious 5 Marla (125 Sq. Yd.) Type-A villa combines modern design and sleek look with intelligent functionality. Its beautiful exterior complements the spacious interior, featuring expansive rooms and precisely designed bathrooms. The highlight of these units is the rooftop, a peaceful space to enjoy the scenic view of the community and host social gatherings under the sky.

Exclusive Community Location

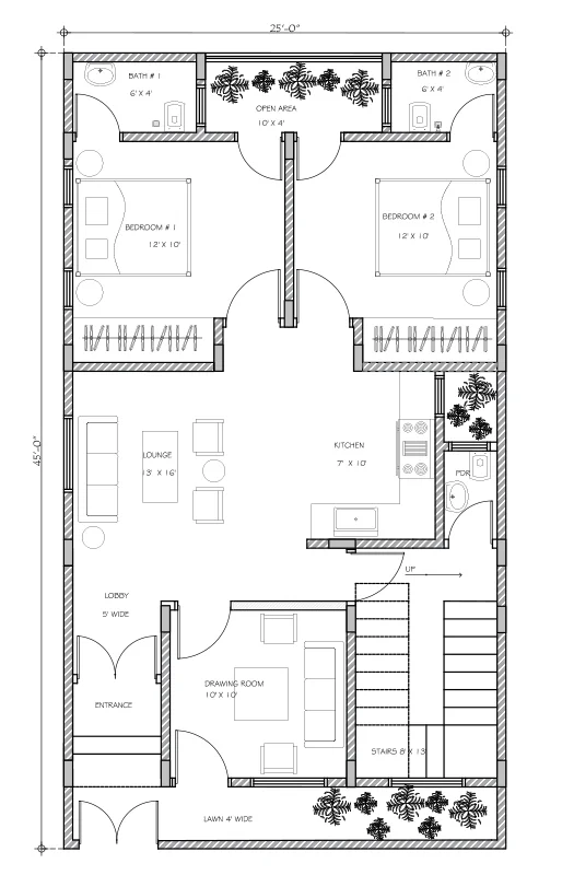
GROUND FLOOR

Floor Plan

Features

  • 2 Bedrooms
  • 2 Bathrooms
  • 1 Drawing Room
  • 1 Powder
  • 1 Kitchen
  • 1 Lounge
  • 3 Open to Sky Spaces

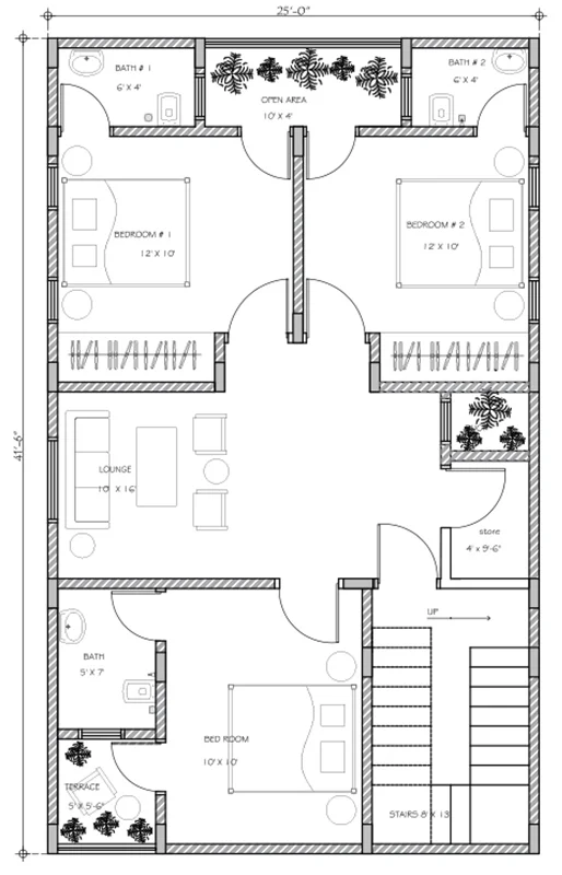
FIRST FLOOR

Floor Plan

Features

  • 3 Bedrooms
  • 3 Bathrooms
  • 1 Lounge
  • 1 Terrace
  • 2 Open to Sky Spaces

This 5 Marla (125 Sq. Yd.) Type-B villa is a flawless combination of modern architecture and thoughtful design. With its spacious bedrooms, stylish bathrooms, elegant kitchen, and cozy living spaces, every corner of the house is crafted for comfort and luxury. The units are carefully conjoined and surrounded by lush greenery for a connected community atmosphere.

Exclusive Community Location

GROUND FLOOR

Floor Plan

Features

  • 2 Bedrooms
  • 2 Bathrooms
  • 1 Drawing Room
  • 1 Powder
  • 1 Kitchen
  • 1 Lounge
  • 3 Open to Sky Spaces

FIRST FLOOR

Floor Plan

Features

  • 3 Bedrooms
  • 3 Bathrooms
  • 1 Lounge
  • 1 Store
  • 1 Terrace
  • 2 Open to Sky Spaces